Ayres Soho Pilará
Nuevo Desarrollo
Ayres Soho Pilará

Un complejo de townhouses modernos y flexibles en Pilará, que combinan diseño, naturaleza y vida en comunidad.

Solicitá información sobreAyres Soho Pilará

Descargar Brochure
Brochure
Descargar Masterplan
Master Plan
Ver Ubicación
Como llegar
Contactanos
Vení a conocer

Conocé Ayres Soho Pilará

Ayres Soho es un complejo residencial ubicado en Pilará, compuesto por 38 unidades de 4 ambientes (tipo loft/townhouses) con acceso independiente. Es una propuesta innovadora que combina el confort de una casa con la practicidad de un departamento. Se destaca por su arquitectura contemporánea, la flexibilidad en el diseño de plantas (cada propietario puede personalizar su unidad), y su integración con la naturaleza.

Este proyecto forma parte del prestigioso entorno de Pilará, creado por Ruete y Guggenheim Nicklaus Partners, y potenciado por la experiencia de Ayres Desarrollos.

Actividades / Amenities

El entorno de Pilará ofrece una gran variedad de actividades y amenities:

  • 5 canchas de fútbol y 2 de paddle
  • 10 canchas de tenis de polvo de ladrillo y 4 rápidas (Gabriela Sabatini)
  • Cancha de golf Jack Nicklaus Signature
  • Canchas de polo y caballerizas
  • Clubhouse con restaurante, piscinas y laguna
  • Bicisendas y sendas ecuestres
  • Áreas de encuentro y esparcimiento

Infraestructura

  • Superficie total del proyecto: 7.962 m².
  • Unidades desde 145 m², con opción de incluir playroom, 1 a 3 baños, y 1 a 3 habitaciones.
  • Acceso independiente a cada unidad.
  • Terminaciones de alta calidad.
Foto de Ayres Soho Pilará

Sustentabilidad | Ayres Soho Pilará

  • Sistema constructivo europeo de paneles estructurales
  • Paneles solares para agua caliente
  • Recolección de agua de lluvia para riego
  • Griferías y sanitarios de bajo consumo
  • Programa de reciclado
  • Iluminación LED en espacios comunes

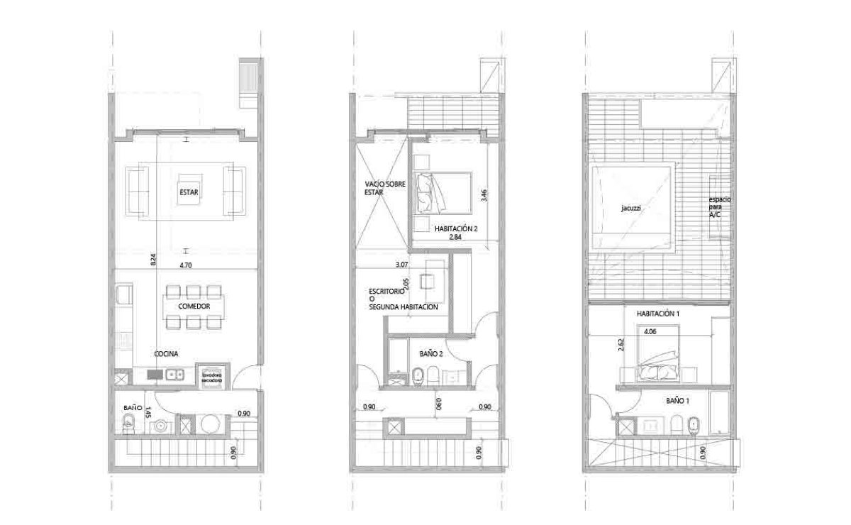
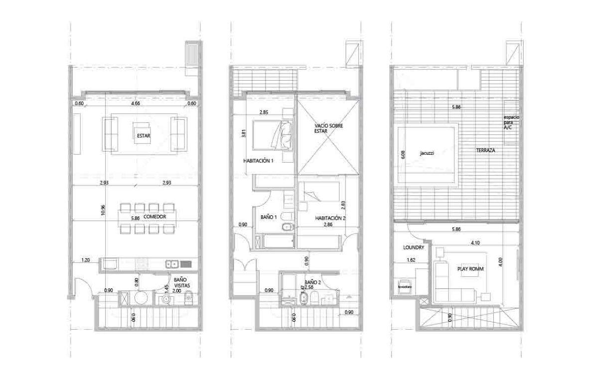
Planos

Además de ofrecer dos tipos de lofts, en Ayres Soho Pilará podés diseñar el plano a tu medida.
Contactanos para más información.

Loft Tipo A

Loft A
  • 2 Habitaciones
  • 3 Baños
  • Playroom

Loft Tipo B

Loft B
  • 3 Habitaciones
  • 3 Baños

Masterplan de Ayres Soho Pilará

Masterplan Ayres Soho Pilará
Descargar PDF

Cómo llegar a Ayres Soho Pilará

Activar Mapa

Propiedades en Ayres Soho Pilará

Ayres Soho Pilará

Solicitá información sobre Ayres Soho Pilará

Click Aquí